공동주택에서 인테리어 공사를 하게 되면
발코니 확장 신고까지 함께 하는 경우가 많습니다.
이때는 반드시 인테리어 공사 신고와 함께
인테리어 동의서 과정을 진행해야 하며,
승강기 보양, 행위허가 등도 진행해야 합니다.
또한 발코니 확장을 위해서
비내력벽 철거까지 함께 진행하게 된다면
해당 시군 구청에 방문하여 공사 신고도 해야 합니다.
이렇게 신고를 진행하는 과정에서는
준비해야 하는 서류가 굉장히 많고
서류를 다 제출하고 난 이후에도
서류가 심사 기준에 부합하지 않는 경우에는
발코니 확장 등의 공사 일정에 차질이 생기게 됩니다.
이번에 발코니 확장, 인테리어 공사를 위해
서울 강동구 암사동 강동롯데캐슬퍼스트에서
페어피스의 인테리어 동의서 서비스와
발코니 확장 행위허가 서비스를 이용해 주셨습니다.
해당 강동구에 위치한 아파트 인테리어 전에 진행한
인테리어 동의서, 발코니 확장 행위허가 후기를
사진과 영상을 통해 보여드리도록 하겠습니다.
가장 먼저 해당 아파트의 관리사무소에 방문하여
공사에 관련된 내용을 안내받고 숙지해야 하며
승강기 보양이나 공사 예치금 등의 비용을 납부하는 등의
행정 업무를 진행해야 합니다.
발코니 확장 공사 신고를 위해 관리사무소에 방문하면
작성해야 하는 서류들을 받을 수 있습니다.
이때 작성해야 할 내용들을 잘 살펴보고
예치금이나 승강기 보양 기준 등에 대한 설명도
꼼꼼히 읽어보고 숙지한 후에 진행해야 합니다.
[공사 보증금]
입금 완료
[승강기 사용료]
입금 완료
[승강기 보양]
지정 업체에 신청
[공사 차량 주차]
지상 1층 이용
[공사시간 준수 사항]
토·일요일, 공휴일은 일절 공사 ㅇ금지
소음이 심한 공정은 오전 10시 이후부터 가능
공사시간 9시 ~ 16시 30분
[동의서]
동의서 원본은 관리사무소에 제출
관리사무소 양식 사용
[공사 안내문]
양식 : 페어피스 양식
승강기 2부, 게시판 1부
[특이사항]
인테리어 공사 준수 사항은 공사 시 공사 세대 현관문과 보양재 설치 후 보양재 위에 각각 부착하여 인부들이 볼 수 있도록 해주세요.
인테리어 공사 주의사항들을 잘 읽어주세요.
승강기 보양 업체가 일요일에 보양 후 도장을 찍어놓고 가면 관리사무소에 제출해 주세요.
공사 시 꼭 현관문을 닫고 작업하셔야 합니다.
공사 중 이동 동선의 복도를 청결하게 해주세요.
실내에서 금연하셔야 합니다.
공사 중 세대 내 화재감지기를 주의해 주셔야 합니다.
필증 제출해야 착공 가능합니다.
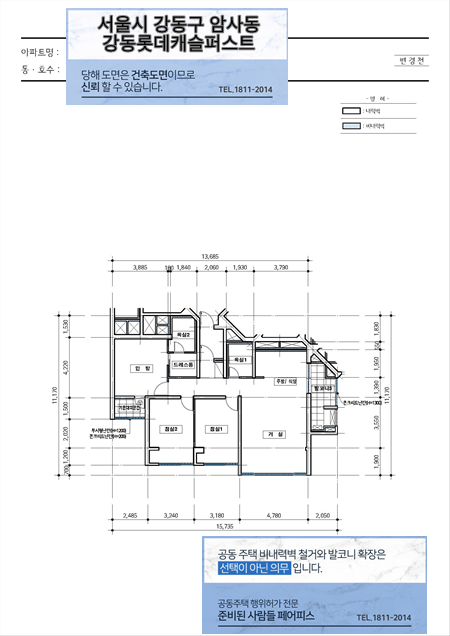
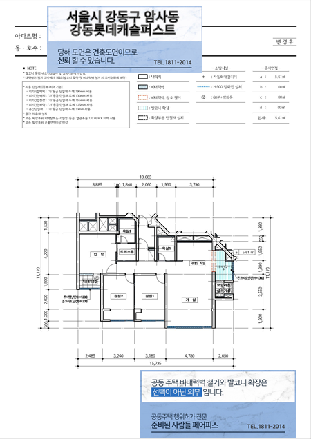
공동주택 발코니 확장 신고를 위해서는
해당 아파트의 도면이 꼭 필요합니다.
이는 단위세대 평면도를 기준으로 작성되기 때문에
공사 전 관리사무소에 방문했을 때 요청하여
단위세대 평면도를 미리 준비하는 것이 좋습니다.
단위세대 평면도는 상, 하, 좌, 우
모든 방향 치수가 잘 보이도록 찍어야 하며
아파트 도면은 변경 전과 후 도면 모두가 필요한
중요한 단계이므로, 꼭 챙겨야 합니다.
아파트 도면까지 모두 준비가 완료되면
발코니 확장 공사 전 동의서 서명을 받기 위해
공사 해당 동으로 이동을 합니다.
발코니 확장 공사 시 작성하는 입주민 동의서는
일반적인 인테리어 공사 동의서와는 달리
양식이 정해져 있는 동의서이며
시군 구청에 허가 신고를 해야 합니다.
또한, 해당 동 주민의 절반 이상이
꼭 동의를 해야 합니다.
서울 강동구 암사동 강동롯데캐슬퍼스트의
인테리어와 발코니 확장 공사를 위해
해당 동 입주민분들께 동의를 구하기 위해
방역 수칙을 지키며 방문하여 인사드리고
인테리어 동의 서명을 채워 갔으며
해당 동 주민의 절반 이상의 동의를 구했습니다.
페어피스는 절반 이상만 채우는 것이 아니라
민원을 최소화하기 위해서
최대한 많은 세대의 동의를 받아들이기 위해 노력하며
부재중 세대에는 인테리어 공사에 대한 안내문을 부착해
최대한 많은 세대에 양해의 마음을 전달합니다.
서울 강동구 암사동 강동롯데캐슬퍼스트처럼
인테리어 동의서에는 발코니 확장, 철거 등의
공사 내용이 빠짐없이 작성되어야 하며
동의 서명에는 각 세대의 호수와 이름, 서명까지
모두 기재되어 있어야만
시군 구청의 허가 서류로 인정받을 수 있습니다.
따라서 내용을 제대로 숙지한 후에
동의서의 빈칸을 채워 나가야 합니다.
서울 강동구 암사동 강동롯데캐슬퍼스트의
인테리어 동의서 서명을 받는 동안
해당 아파트의 도면이 완성됩니다.
변경 전, 변경 후 도면이 모두 있어야 하기 때문에
두 가지 모두 준비되었는지 확인해야 합니다.
또한, 발코니 확장이나 비내력벽 철거 등의 내용이
잘 기재되어 있는지, 치수가 정확한지
꼼꼼히 점검하며 서류를 준비해야 합니다.
시군 구청에 제출하기 위한
인테리어 동의서, 아파트 도면 등이 모두 준비되면
구청에 공사 신고를 진행하러 갑니다.
공사 신고는 오프라인과 온라인 모두 가능하며
오프라인은 구청에 직접 방문하면 가능하고
온라인의 경우 '세움터'라는
국토부 민원 사이트에서 진행 가능합니다.
기관에 따라 처리 기간의 차이가 있지만
대부분 약 10일 정도의 기간이 소요되며
처리 기간 이후 발코니 확장 공사에 대한
행위허가 필증을 발급받을 수 있습니다.
만약, 서류 보완이 필요하다는 안내를 받게 되면
서류를 보완한 후에 재신고를 진행해야 하기 때문에
처음부터 서류 준비를 제대로 하지 않으면
공사 일정에 차질이 생길 수 있습니다.
발코니 확장 공사에 대한 행위허가는
이렇게 절차가 복잡하고 까다로운 만큼
전문적이고 믿을만한 기업에 맡겨서
진행하는 것이 가장 좋습니다.
준비된 사람들 페어피스는
업계 가장 오래된 기업으로
전국 어디서나 이용하실 수 있습니다.
인테리어 공사를 하는 과정에서
크고 작은 문제나 까다로운 과정 없이
행위허가 필증까지 한 번에 발급받으실 수 있도록
페어피스가 도와드리겠습니다.
'페어피스 서비스 후기 > 행위허가 신고' 카테고리의 다른 글
| 성북구 정릉동 정릉대우 아파트 인테리어동의서 행위허가 리뷰 (0) | 2023.05.18 |
|---|---|
| 가설 건축물 축조 신고 대행 - 경상남도 창원시 진해구 안골동 (0) | 2023.01.02 |
| 서초구 인테리어 동의서부터 행위허가까지! 서초5차대림이편한세상 발코니확장 허가 후기 (2) | 2022.12.12 |
| 목동 발코니 확장 행위허가 후기 - 서울 양천구 목동롯데캐슬위너 (0) | 2022.11.21 |
| 입주민 동의서 ~ 발코니 확장 행위허가 - 서울 노원구 상계동 상계주공14단지 (0) | 2022.09.26 |



















